Szanowni Państwo!
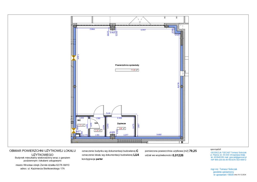
Zapraszamy do zakupu ostatniego lokalu usługowego w gotowym, I etapie inwestycji Nowe Żerniki Bieńkowskiego. Oferujemy lokal usługowy w dynamicznie rozwijającej się okolicy, gdzie w budowie jest kilka tysięcy nowych mieszkań. To doskonała okazja, aby zyskać dostęp do szerokiego grona potencjalnych Klientów, którzy już niedługo będą mieszkać tuż obok. Lokal o powierzchni 79,25m2 jest świetnie skomunikowany, przestronny, zlokalizowany w centrum tętniącego życiem osiedla.
Zapraszamy do kontaktu z biurem sprzedaży i na prezentację!






Brak historii zmian ceny.